formlichtraum ← Back
002 — Lighting
formlichtraum

Lighting
Objects &
Editions

Custom luminaires developed from material logic. No ornament added. Each object is a position — on light, on form, on production.

Nothing hidden. Nothing added.

Biege
Biege — floor luminaire line drawing
Floor Luminaire
formlichtraum

Biege

Organically curved GFK tube wrapped in braided textile sleeve — the material is the form. Single LED point source at the tip, diffused light pattern on the wall. Circular base, minimal footprint.

TypeFloor Luminaire
StatusConcept
MaterialGFK · Textile
BaseAluminium
Render Biege render
Material Detail Biege — braided textile sleeve detail
Linoleum
Linoleum Pendant — line drawing
Pendant Luminaire — In Development
formlichtraum

Linoleum
Pendant

Domed disc luminaire. Biolex 60mm module. Turned aluminium outer ring as edge finish and heat sink. Dual-layer Forbo linoleum disc. Material honesty as the only ornament.

TypePendant
StatusPrototype Testing
ModuleBiolex 60mm
RingTurned Aluminium
003 Filz
003 Filz — felt luminaire
Luminaire — Concept
formlichtraum

003_Filz

Felt luminaire. Material as diffuser — the felt absorbs and releases. Form follows acoustic and photometric logic simultaneously.

TypeLuminaire
StatusConcept
MaterialFelt
Labelformlichtraum
Fatboy
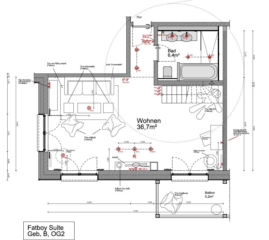
Fatboy Suite — custom lighting
Hospitality Lighting — 2016/18
Custom

Fatboy
Suite

Custom lighting concept for the Fatboy Suite at Beachmotel Scharbeutz. Backlit Fatboy logo as feature wall luminaire, DALI-controlled colour system for ambience. Complete lighting plan from concept to installation.

TypeHospitality
SystemsDALI · RGB
Space36.7 m²
Year2016 – 2018
Lighting Plan Fatboy Suite lighting plan